I can make a drawing of a workshop for the manufacture of metal structures
Actions
I have over 14 years of shop drawing experience.
I have done many projects with fiber buyers such as balcony railings, stair railings and steel canopies.
Here is my service:
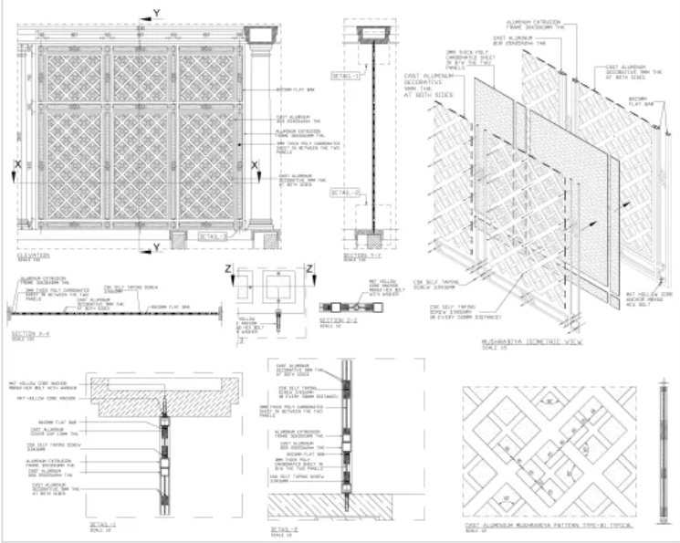
detail shop drawing
drawing of stair railing
balcony guardrail drawing
steel structure drawing
material take off
parts list
PDF/HandSketch to AutoCAD
"Order Now"
Send us a full description of your project and your budgeted price before placing your order.
If you like my service, please like my gig by clicking the "like" button in the top right corner.
I am an expert in this field:
- Shop drawings
- Drawing in AutoCAD 2D
- 3D drawing in AutoCAD
- Pdf in Autocad
- Selection of material
If you doubt my work and my services, I advise you to talk to me in person first.
I'm sure I can convince you and help you in your question so that you are satisfied! That's why I still work and earn!
What is included in the base cost?
Package include Metal Fabrication shop drawing for small job (1 Item)
How long does the work take?
Usually 1 days!
If I don't like the result, what should I do?
We will bring everything to the perfect result that you will like!

Great work, understood project and delivered. Would recommend highly

No revisions necessary. I can't say enough about them. Definitely will hire their services again. I highly recommend them.

Horrible experience ever!! Do not reccoment this performer!

It was not a very smooth experience working with. The final product is almost exactly what we were looking for.

Will look forward for more business and very highly recommended.

Professional seller, clean work and fast delivery. The seller is very good at this work.

I was also incredibly impressed by the quick turnaround and the quality of your work!

Words can't explain how satisfied I am, so I'll leave it to the seller's words when you decide to work with them. Thank you for service. I will hire you again!

The medium qualty of work as always! Quick turn around and awesome work for me!

Excellent Job, Delivered before the deadline. GREAT!!!!
You may also like the following gigs